406 - 796468 Grey Road 19 Blue Mountains, Ontario L9Y 0N6
$334,000Maintenance, Common Area Maintenance, Cable TV, Water, Parking, Insurance
$506.70 Monthly
Maintenance, Common Area Maintenance, Cable TV, Water, Parking, Insurance
$506.70 MonthlyNorth Creek Resort at Blue ~ income plus enjoyment! Great studio unit steps from the ski gate to Blue Mountain ski hill. Currently short term accommodation (STA) licence approved and renting on Airbnb, buyer to apply and meet criteria with the Town of The Blue Mountains if you wish to continue renting the unit out. Fully furnished and equipped, with a queen bed, pull out couch, in total the unit sleeps 4. Options available for combination of personal use, nightly/weekend/extended rentals. Enjoy the community amenities such as the year round outdoor hot tub, summer heated swimming pool, tennis/pickleball courts, community BBQ, lounge in Gatehouse, overnight security, snow removal to right to the door, Rogers Ignite TV and unlimited Internet, all included in Condo Maintenance. Conveniently dine onsite at the Indian Restaurant, or you can walk, bike, or take the shuttle to Village at Blue Mountain to dine and shop. HST and BMVA fees apply, and in addition to sale price. North Creek Resort at Blue is a member of the Blue Mountain Village Association, fees and corresponding benefits apply. Special assessment until 2027. North Creek Resort at Blue was previously known as Mountain Springs Resort. This is your chance to enjoy your weekend getaways & ski vacations, and supplement the costs with rental possibilities. (id:54532)
Property Details
| MLS® Number | X12481430 |
| Property Type | Single Family |
| Community Name | Blue Mountains |
| Amenities Near By | Beach, Ski Area |
| Community Features | Pets Allowed With Restrictions |
| Features | Balcony |
| Parking Space Total | 1 |
| Pool Type | Outdoor Pool |
| Structure | Tennis Court |
Building
| Bathroom Total | 1 |
| Bedrooms Above Ground | 1 |
| Bedrooms Total | 1 |
| Amenities | Visitor Parking, Fireplace(s), Storage - Locker |
| Appliances | Dishwasher, Stove, Water Heater, Refrigerator |
| Basement Type | None |
| Cooling Type | Wall Unit |
| Exterior Finish | Wood |
| Fireplace Present | Yes |
| Fireplace Total | 1 |
| Heating Type | Other |
| Size Interior | 0 - 499 Ft2 |
| Type | Apartment |
Parking
| No Garage | |
| Shared |
Land
| Acreage | No |
| Land Amenities | Beach, Ski Area |
| Zoning Description | C4 |
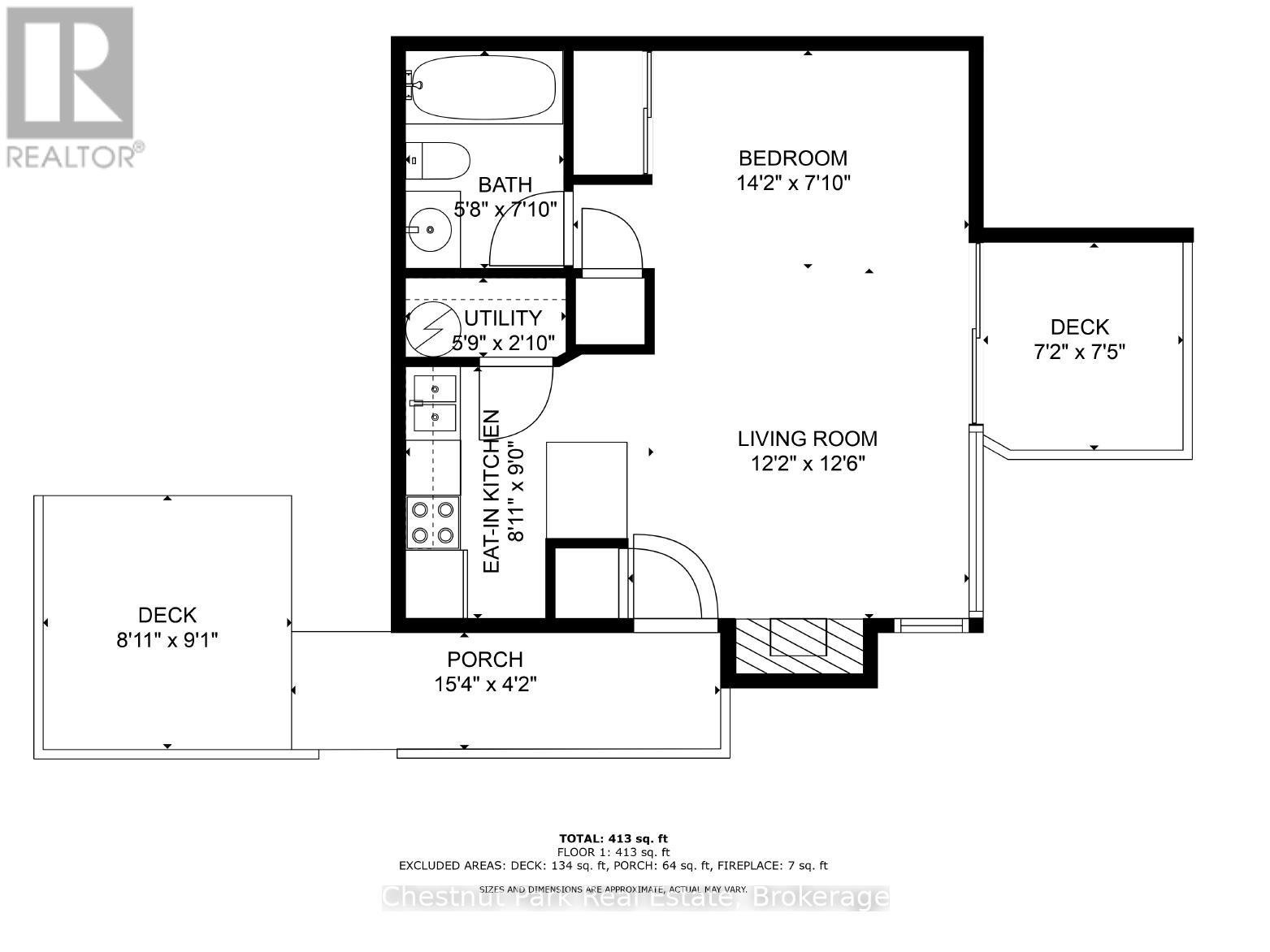
Rooms
| Level | Type | Length | Width | Dimensions |
|---|---|---|---|---|
| Main Level | Kitchen | 2.44 m | 2.87 m | 2.44 m x 2.87 m |
| Main Level | Living Room | 2.54 m | 2.97 m | 2.54 m x 2.97 m |
| Main Level | Bedroom | 2.54 m | 2.97 m | 2.54 m x 2.97 m |
| Main Level | Bathroom | 1.5 m | 2.31 m | 1.5 m x 2.31 m |
https://www.realtor.ca/real-estate/29030946/406-796468-grey-road-19-blue-mountains-blue-mountains
Contact Us
Contact us for more information
Michelle Kingsbury
Salesperson
www.collingwoodforsale.com/
www.facebook.com/collingwoodforsale/
twitter.com/collingwoodsale
www.linkedin.com/in/michelle-kingsbury-433b75b7/


























































































